Homes

At a glance

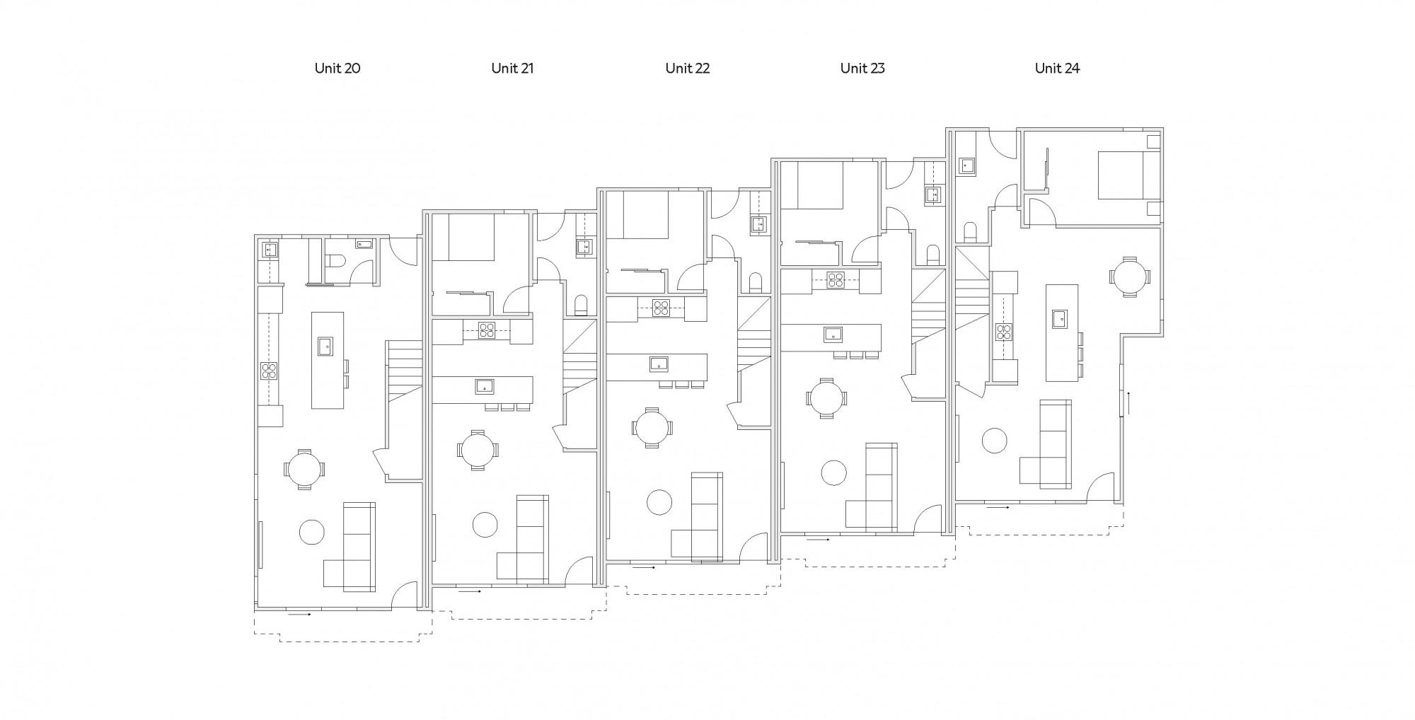
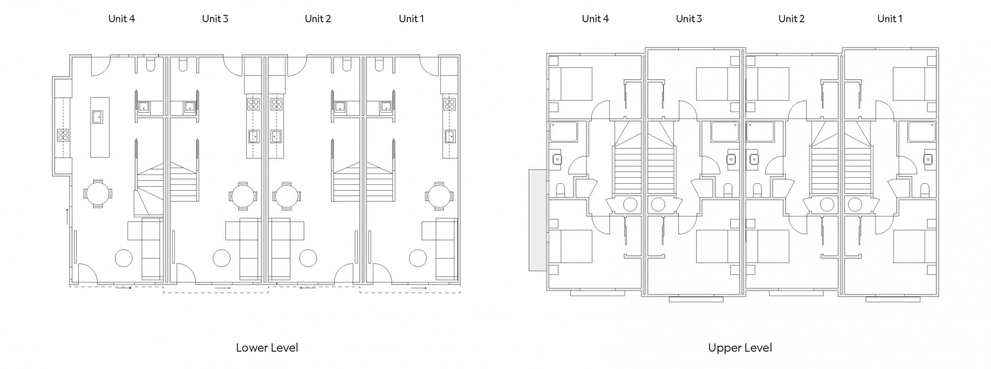
A total of 24 townhouses 

3 x 4-bedroom townhouses
2 x 3-bedroom townhouses
19 x 2-bedroom townhouses


• Quality finishes and appliances and stone benchtops in kitchen and laundry
• Walking distance from main bus and train routes
• Walking distance from local shops & cafes
• Easy access to local parks and playgrounds
• Integrated laundry package
• Easy-care outdoor entertainment areas
• Bedroom blinds 
• Above code insulation and double glazing
• Selected townhouse and island kitchens

 

Block A

Block B

Block C,D,E

Block F

Block G

Block H Lower Level

Block H Upper Level